- 地點:台北市文山區
- 格局:3房1廳2衛
- 屋況:舊屋翻新
- 室內設計風格:現代簡約風
本次的案例為三代同堂,男女主人從事教育工作。屋主喜歡簡單、明亮、乾淨的無印風格,同時希望能兼顧風水位置。好不容易購入新屋,但是在裝修上希望能在三個半月內完工入住新屋,因此從設計規劃到完工受到時間的考驗。
屋主在朋友口碑介紹下認識澄格室內設計團隊,由於才剛購入新屋,裝修預算已經所剩無幾,起初覺得報價超出預期,經過與設計師溝通和刪減預算後,屋主認為能符合心中重點需求,最後仍決定委託澄格團隊。
建物結構和拆除作業就面臨嚴峻的挑戰
本案例最困難的挑戰除了需在有限工時內完成室內裝修外,還有兩處較為頭痛的地方:
1. 建築物結構問題
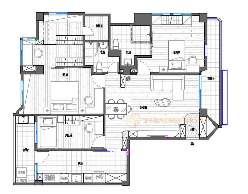
由於屋主購入的新房位在高樓層,而該建物在屋頂部分採斜屋頂設計,因此家中有3個牆面都呈現斜角度,讓整個空間容易產生視覺壓迫。
為了避免後續入住會感到視覺上的不舒適,澄格設計師和屋主溝通將斜角牆面處規劃為收納間,或者使用木作櫃來修飾畸零角落,一方面增強視覺上的美觀,另一方面也兼顧收納機能。
2. 新屋格局變動大,拆除時間長影響鄰居作息
本案為舊屋翻新,因規劃後新家格局變動較大,需要花費不少時間進行拆除。長時間的敲打影響鄰居作息,澄格設計師便與鄰居溝通,配合鄰居時間調整施工時程,讓工程噪音盡量簡短集中完成。
此外,拆除過程中澄格團隊也留意到大樓公共區域的整潔和設施保護,以盡量不影響鄰舍的前提下完成拆除工作。

考慮家中有長輩入住,無障礙動線很重要
在需求訪談時,屋主提到會和長輩一起住,考慮到將來長輩行動可能不便,希望能設計成讓長輩好走的無障礙動線,不要有太多的高低差。
因此澄格設計師考慮到長輩行走動線為公共區域和房間,這段路程必須地面平整,且寬度至少要預留75-80公分,以便日後使用輔助工具時路線不會太過狹窄;此外在浴室方面也規劃防滑磁磚與安全扶手設計,讓長輩如廁、沐浴更加安心便利。
在規劃無障礙動線的同時,為了讓客廳與房間有更流暢的動線感,設計師特地在玄關和電視牆間設計一道不對稱的曲面造型,透過柔和的線條延伸到後端走廊,房門亦採隱藏門設計,使公共區域看起來更開闊、舒適。

因應屋主夫妻工作需要,專屬打造的閱讀區
屋主夫妻雖為教育工作者,但因工作繁忙,有時在家裡也需要有空間能閱讀文獻資料,但又不希望和休息區相互干擾。
於是澄格設計師在主臥室特別規劃兩處閱讀區,中間加上橫拉門,充分的劃分休息跟專心閱讀的區域,同時每處空間盡可能保留原有的窗戶採光,讓空間時刻保持明亮。
總結
在完工交屋後,澄格設計師會追蹤關心屋主的居住情況,若是有使用上不順手、需要新增任何小配件,澄格都會盡快協助安裝和處理。
屋主表示整體而言感覺非常滿意,從需求溝通和施工期間遇到不了解的部分,澄格設計師都很有耐心、細心的為屋主解說;施工期間也會不斷和屋主更新進度,讓他們感到放心,也願意推薦給其他有房屋裝修需求的人。
如果您也正在尋找有豐富經驗、專業木工背景,美觀與實用兼具的室內裝修團隊,歡迎與我們預約洽談。


